πρόταση πολυκατοικίας
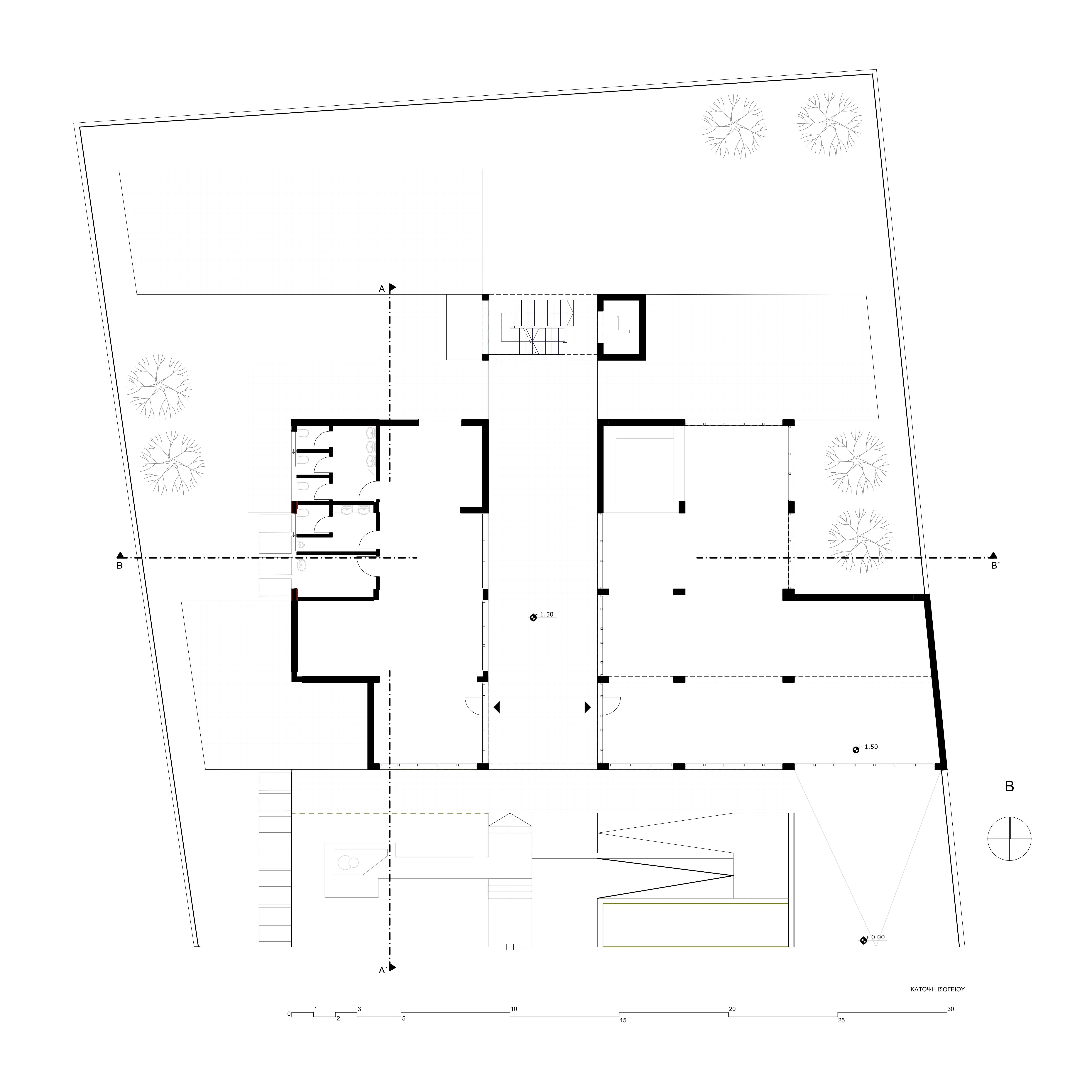
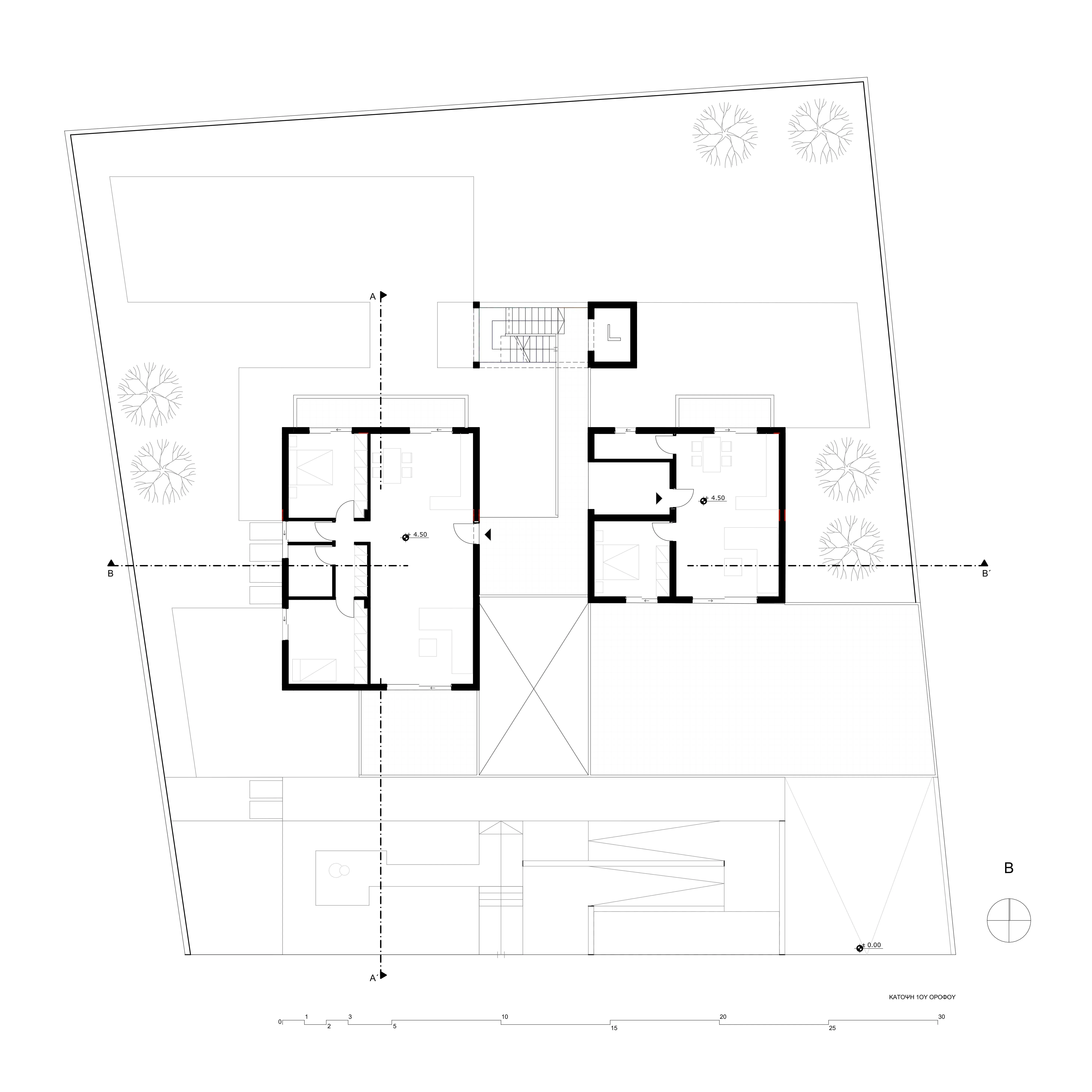
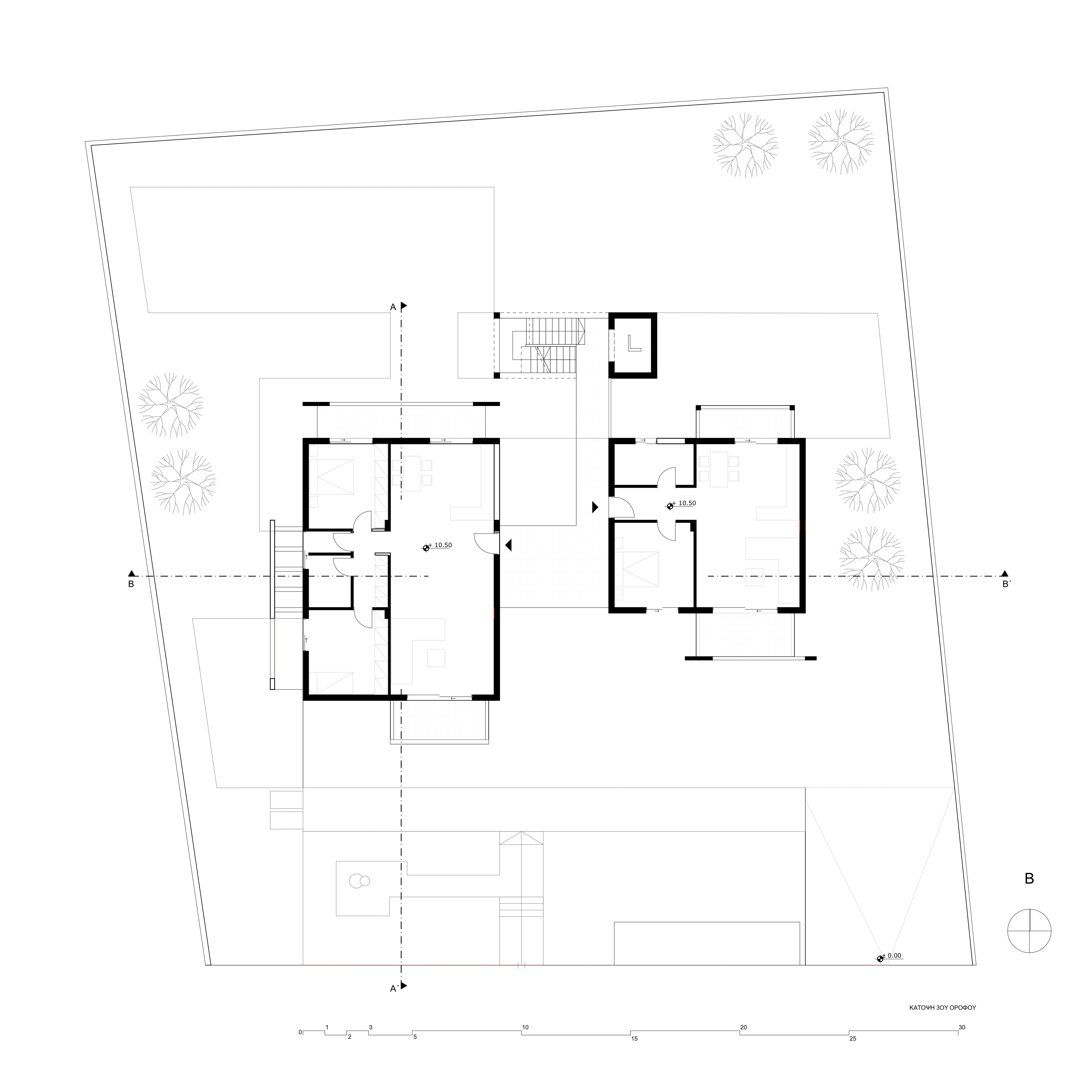
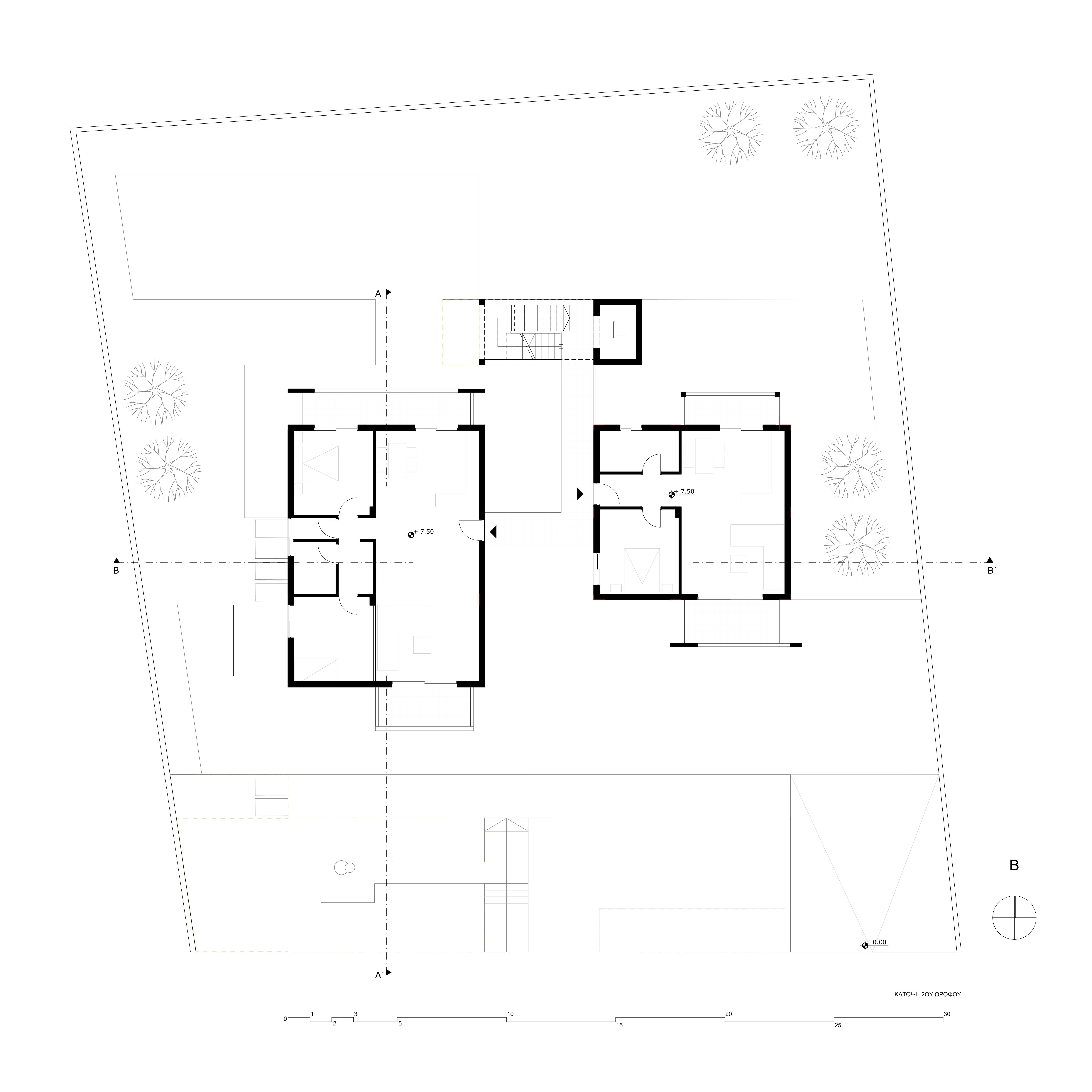
Η συγκεκριμένη πρόταση, αφορά την δημιουργία ενός συγκροτήματος διαμερισμάτων, τα οποία οργανώνονται στον κάθετο άξονα. Για την συνολική αφαίρεση του όγκου, το κτηριακό σύνολο, διασπάστηκε σε δυο στερεά, τα οποία συνδέονται με ένα εξωτερικό κλιμακοστάσιο. Η κεντρική ιδέα στηρίζεται σε ένα διαμπερές σύστημα, το οποίο επιτρέπει, την κίνηση του αέρα καθώς και την άμεση ηλιακή φωτεινότητα σε όλες τις όψεις. Είναι ευδιάκριτη η χρήση του εμφανούς τούβλου και της ώχρας, καθότι αυτά, συνδέονται με τη χρήση του εμφανούς σκυροδέματος. Ο ισόγειος χώρος, ο οποίος αναπτύσσεται στον οριζόντιο άξονα, προτείνεται για πολιτιστικές δράσεις.



















