κατοικίες διακοπών

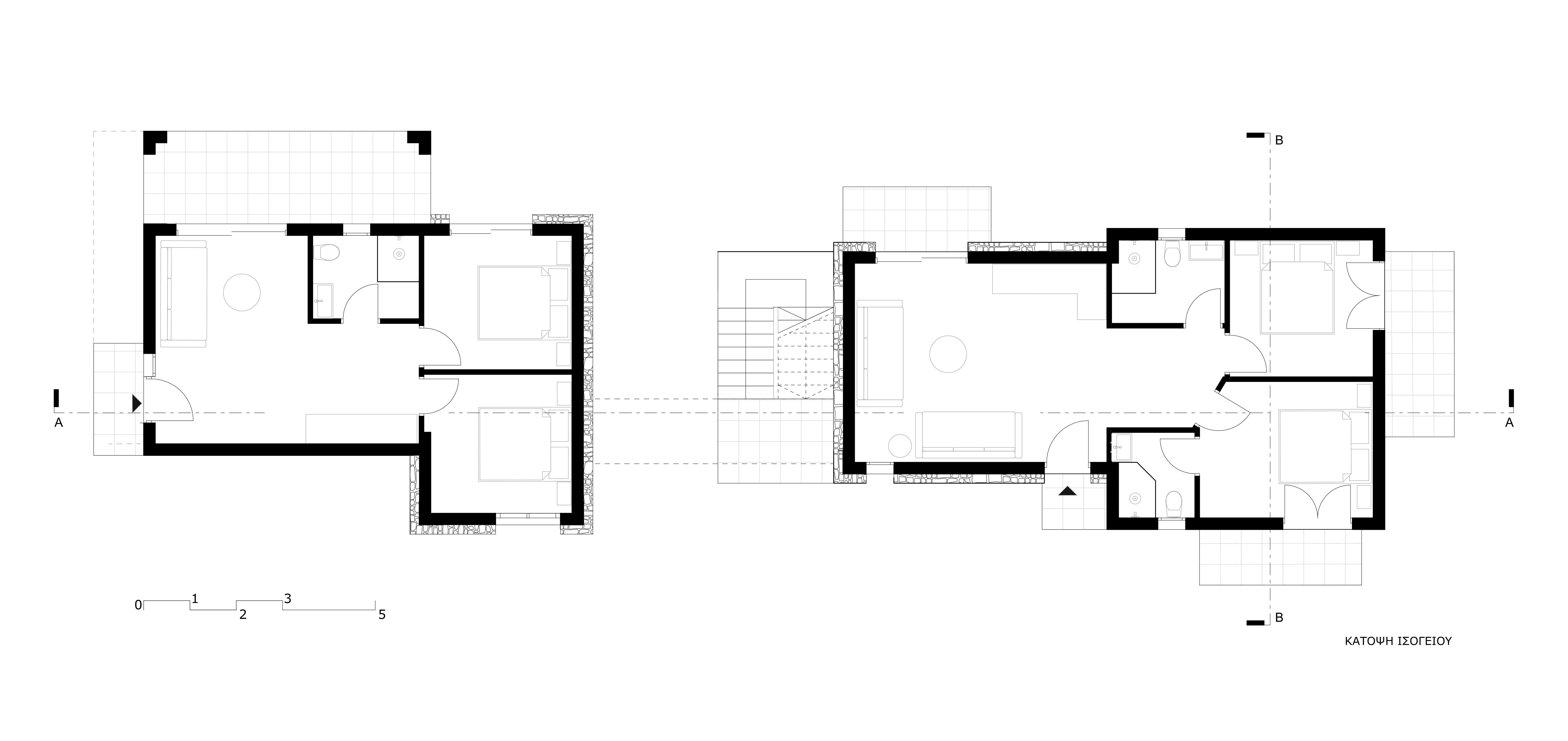
Το οικόπεδο, βρίσκεται στην σκάλα Καλλιράχης της Θάσου και είναι ενταγμένο μέσα στη φύση καθώς σε αυτό υπάρχουν πολλά ελιόδεντρα. Ως αφετηρία, της κεντρικής ιδέας, αποτέλεσε το γεγονός, του σεβασμού και της διατήρησης των δέντρων με ελάχιστες μετακινήσεις και μεταφυτεύσεις αυτών. Ως εκ τούτου τα διασπασμένα κτήρια των τεσσάρων όψεων, χωροθετούνται γύρω από τα δέντρα, διαγράφοντας αφηγηματικές διαδρομές. Επιπρόσθετα, οι τέσσερις κτηριακοί όγκοι, ενοποιούνται με την ζεύξη σκυροδετημένων διαδρόμων οι οποίοι δημιουργούν παράλληλα υμιυπαίθριους χώρους.
Εμφανής είναι ο κεντρικός πυρήνας (υδάτινο στοιχείο) οργάνωσης των οικιών, ο οποίος περικλείεται από τους χώρους διημέρευσης των διαμενόντων. Οι κατοικίες, οργανώνονται σε δυο επίπεδα, των ισόγειων διαμερισμάτων καθώς και των ορόφων. Στο ανώτερο επίπεδο, δημιουργούνται άπλετοι εξώστες χαλάρωσης και οπτικής θέασης του φυσικού τοπίου. Τα υλικά τα οποία χρησιμοποιούνται (τοπικά πετρώματα), προδιαγράφουν την Ελληνικότητα και την λαϊκή παραδοσιακή αρχιτεκτονική, η οποία αποδίδεται με σύγχρονα στοιχεία του μοντερνισμού.

  • SHARE: