ανακατασκευή λιθόκτιστου

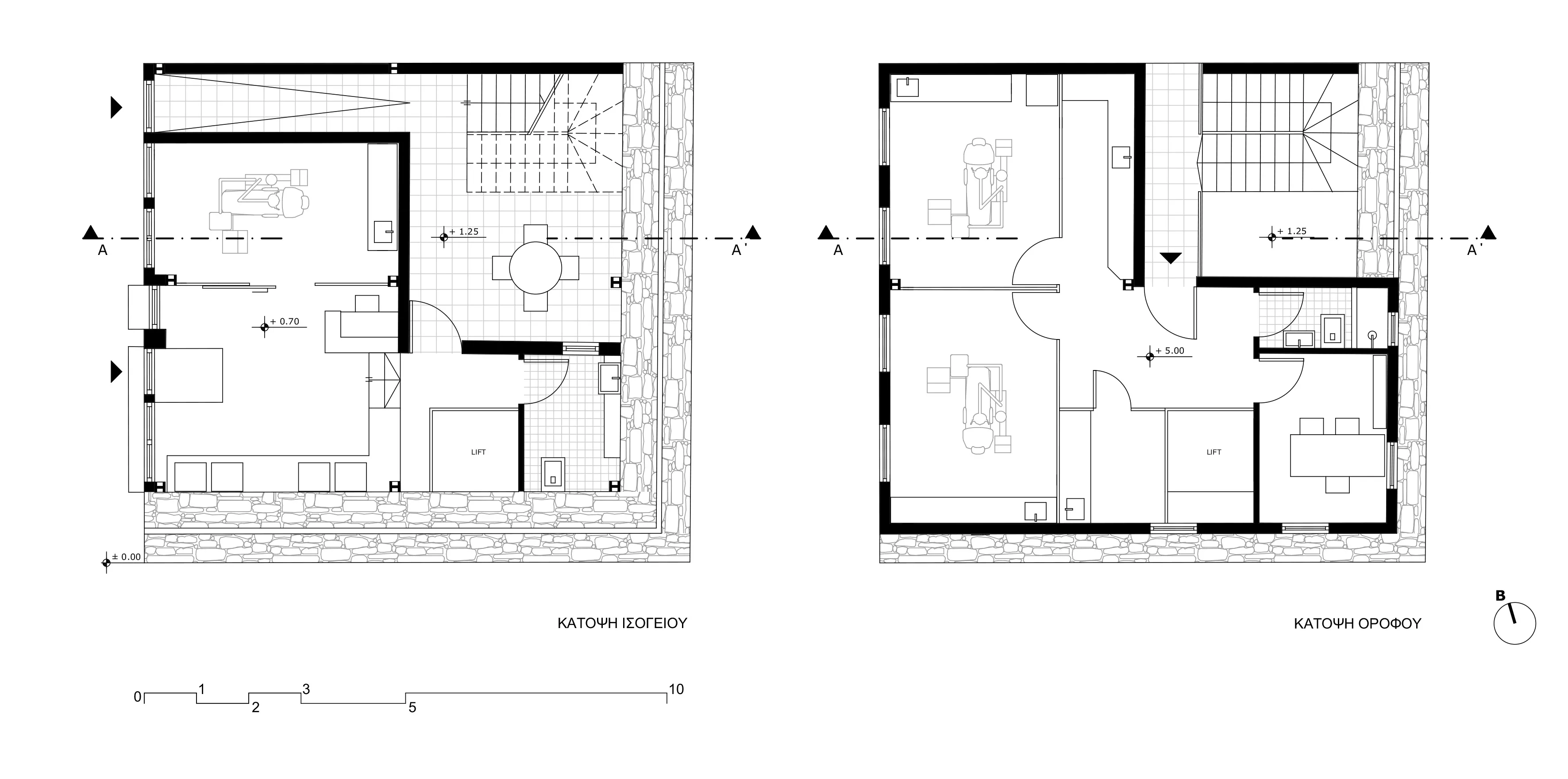
Πρόκειται για ένα υφιστάμενο κτίσμα της περιόδου του 1880, το οποίο είχε, χρήση κατοικίας. Το κτίσμα ανακατασκευάστηκε σε συνεργασία με τον αρχιτέκτονα μηχανικό Κονδυλίδη Μιχάλη. Εφαρμόστηκε, η τεχνική της διατήρησης του εξωτερικού κελύφους και επανατοποθέτησης εσωτερικά νέου μεταλλικού φέροντα οργανισμού.

Οι φέρουσες  λιθοδομές, αναδείχθηκαν, καθώς το κτίσμα διατήρησε την αρχική του μορφή με τα ιδιά ανοίγματα και αναλογίες. Η χρήση άλλαξε, και από κατοικία, σήμερα λειτουργεί, ως οδοντιατρική κλινική. Η σύγχρονη αρχιτεκτονική και η τεχνολογία, είναι εμφανής καθώς συνυπάρχουν με το αρχικό  κέλυφος.

  • SHARE: